7月4日,SOHO中国董事长潘石屹来到古北SOHO,为五位2018年4-5月的古北SOHO优秀建设者颁奖。标志着古北SOHO距离其正式开业。这栋SOHO中国旗下的又一力作,其面纱后的真身究竟如何呢?就让一百楼佳的小编带您领略一下吧~
交通:项目毗邻上海交通大动脉延安高架、内环高架,项目建成后将与地铁10号线及规划中的15号线伊犁路站地下连通。
古北SOHO设计师:James von Klemperer
古北SOHO的设计师为KPF建筑师事务所设计总监-James von Klemperer。相信对于这个名字大家应该都不太陌生。华盛顿彼得森研究所、康涅狄格金神大赌场、天津恒隆广场、上海恒隆广场、上海静安嘉里中心、北京华贸中心等都是他的代表做品,James von Klemperer更多次获得纽约AIA大奖。
古北SOHO效果图
总建筑面积:158648.45㎡
地上建筑面积:107589.35㎡
主楼地上建筑面积:70313㎡
层数:38+1层
高区:26F-38F(38F为跃层)
中区:11F-24F
低区:3F-9F
10F、25F为避难层
辅楼地上建筑面积:35163㎡
层数:12层
美国 LEED 金级认证
LEED 是“绿色能源与环境设计先锋奖”的简称,是由美国绿色建筑协(USGBC)建立并于2003年开始推行,并在世界各国被认为是最完善、最有影响力的绿色建筑认证系统, 在美国部分州和一些国家已被列为法定强制标准。
“美国建筑奖” 是美国最高等和最负盛名的尊贵建筑奖励计划,该奖项表彰美国建筑师在美国和海外设计的最佳新建筑,以及国际建筑师在美国设计和建造的建筑。
“绿色建筑设计评价标识”是由住房与城乡建设部授权机构依据《绿色建筑评价标准》和《绿色建筑评价技术细则(试行)》和《绿色建筑评价技术细则补充说明(规划设计部分)进行的国家权威认证。
智慧建筑群,更显高质量办公
节能:采用高性能的单元式玻璃幕墙系统,玻璃采用双银 LOW- E玻璃,其综合节能效率远优于普通 LOW- E 玻璃,具有极高的可见光透过率和极低的太阳能透过率,夏季能有效阻挡太阳能的进入;
清洁水:中水的合理回收和利用使本项目建筑节水率达到 40%。在办公的各楼层设置直饮供应点,自来水经过五级过滤处理后,达到生饮水标准,为办公人员提供安全卫生的饮用水;
新鲜空气:集中的新风净化处理系统,源源不断为大楼人员提供洁净的空气,新风标准较美国LEED基本标准增加 30%,新风采用高效静电除尘过滤,瞬间杀灭细菌和病毒,并过滤空气中灰尘;
智能楼宇:设置智能楼宇管理系统 (IBMS: Intelligent Building Management System), 对楼宇实现智能化管理,让生活和工作在楼里的人更高效、安全、舒适。
古北SOHO主楼大堂效果图
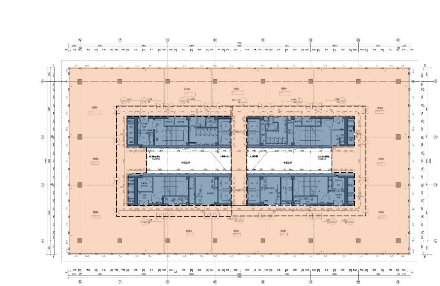
标准层面积: 1,620㎡-1,980㎡不等
古北SOHO辅楼大堂效果图
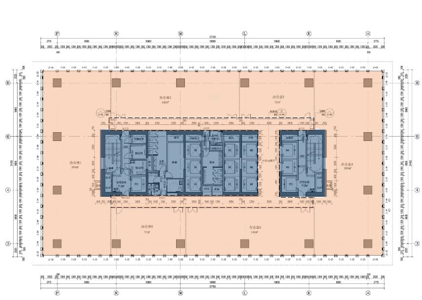
标准层面积: 2,320㎡-3,200㎡不等
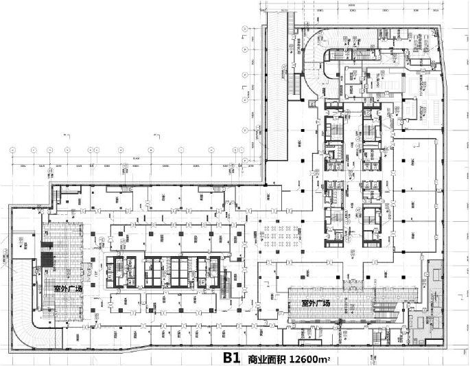
古北SOHOB1效果图
标准层面积:12,600㎡
交付标准
找办公室就上一百楼佳
www.100loujia.com
021-61155296
